Frozen Food Danfoss Optyma OP-LSQM048NTW05G/E Condensing Unit With Eco EVS EVS201/BED Internal Evaporator Blower Cooler -21 DegC Room Size 10 M3 Kit in 230V or 415V
Room Size: 10 Meters Cubed
What this refrigeration kit includes:
1 Piece Low Temperature OP-LSQM048NTW05G/E Danfoss Optyma Condensing Unit (Not charged with refrigerants) 230V or 415V~50Hz
1 Piece EVS201/BED ECO GCE Compact Cooler Evaporator Blower 230V~50Hz
1 Piece Danfoss TEV TE2 R452A Range N, 3/8" Flare x 1/2" Solder outlet Expansion Valve
1 Piece Danfoss T2/TE2 Orifice No 0X for flared connection
3 Pieces 3/8 Flare Nut
1 Piece Danfoss Solenoid Valve 032F1204 (EVR 3) 3/8" Solder
1 Piece Danfoss Solenoid coil 230V~50Hz 018F670200
3 Pieces PRO-150 Air Probe 6m (3 required per panel)
1 Piece RDM PRO150MSB Electronic Control Panel
1 Piece 3/8 Flared Drier
1 Piece 3/8 Sight Glass Flared
This is a complete refrigeration plant kit for a frozen food holding room with a operating temperature of -21 DegC. This kit contains a Danfoss condensing unit, Eco EVS indoor evaporator, flare nuts, drier, sight-glass, solenoid valve + coil and an electronic controller. This kit is ideal for a freezer cold room replacement or as a new installation.
Danfoss Optyma Condensing Unit:
Compact and cost effective, when space, quieter operation, efficiency, faster and safer installation are required Danfoss Optyma is the natural choice. Danfoss Optyma condensing units are the market leader in refrigeration chiller/freezer product with a global presence and wide equipment range. The Danfoss Optyma slim all in one A/C style outdoor units work on refrigerant R404A, R452A and R507A and operate with a low temperature back pressure. This kit has been designed to operate at temperatures of -21 Deg centigrade and work with R452A refrigerant.
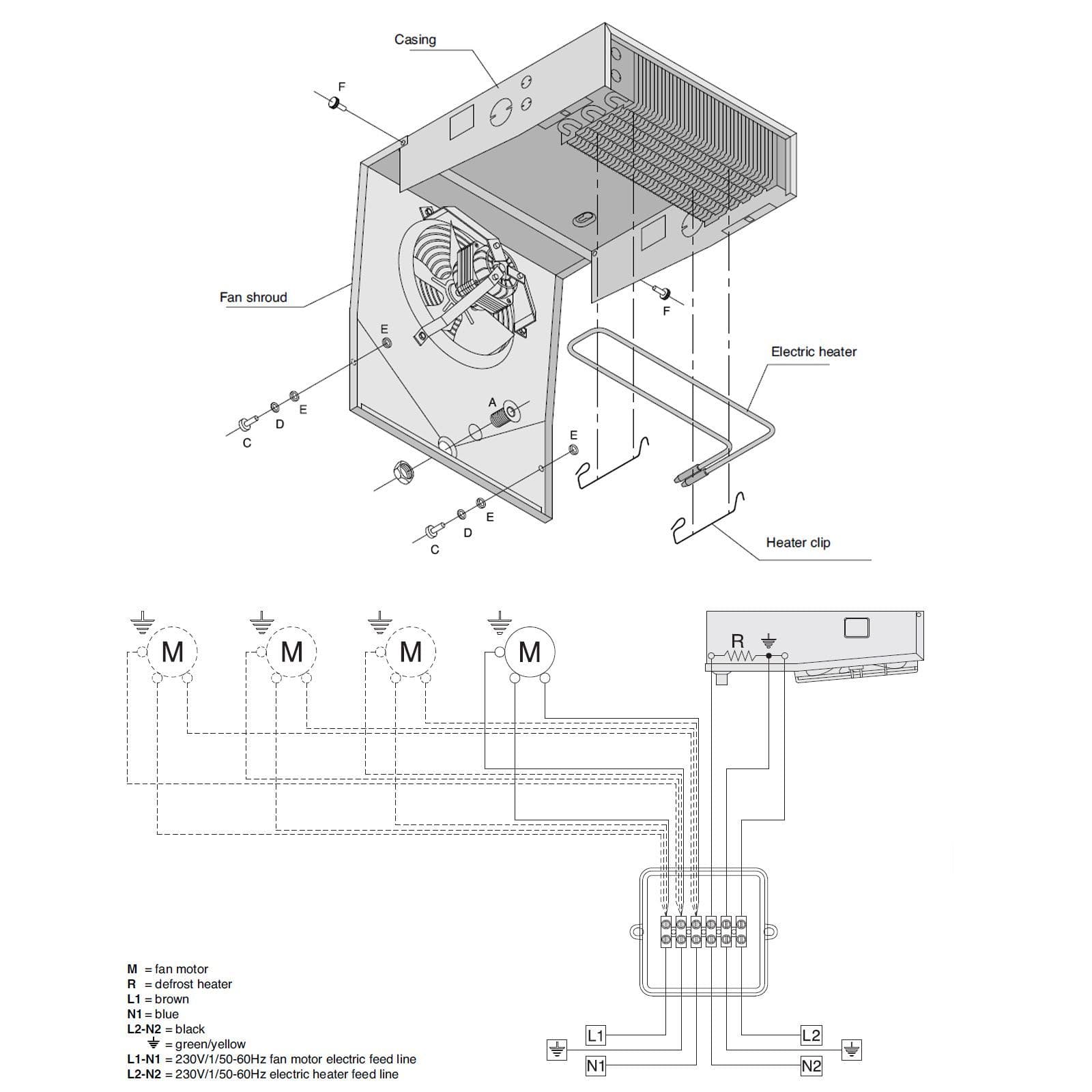
Mobine Eco Compact Indoor Cooler:
The Mobine Eco compact indoor unit range is a high grade european manufactured cooler coil which has been designed for installation in low temp reach-in cabinets, display cases and small cold rooms. This range is for lower temperatures (≥ –25 °c) and have dual fin spacing, high quality coils made from special profile aluminium fins with inner grooved copper tube for high efficiency and better heat transfer making them suitable for the new generation of refrigerants. The pre-installed fan motors are single-phase 230V/1/50-60Hz, have tough fibreglass charged polyamide polymer fan guard and comes with a iP42 protection grade. This cooler coil evaporator product is designed to operate at temperatures of –40 to +40 °c and as standard comes with pre-installed electric defrost stainless steel heaters, internal drip tray, vulcanised power terminals within the junction box (iP54 rated) with space for extra wiring connections. A full range of spares available (see pdf data sheet).
Electronic Refrigeration Controller:
The value packed RDM PRO150MSB electronic refrigeration controller comes with all you need to operate your refrigeration plant effectively and efficiently. It offers the user full temperature control, easy navigation, selectable defrost periods, digital temperature display and warning signals/audible alarm signals.
Technical Data:
|
Model Indoor Unit:
|
EVS201/BED
|
|
Air volume
|
605 m3/hr
|
| Defrost Heaters |
Yes |
|
Air throw
|
4.5 m
|
|
Width
|
611 mm
|
|
Depth
|
435 mm
|
|
Height
|
170 mm
|
|
No of Fans 230V 50/60Hz 1~ Phase
|
2
|
|
Net Weight
|
10.7 kg
|
Product Details Condensing Unit:
|
Gross weight
|
77 kg
|
|
Net weight
|
62 kg
|
|
MPN
|
OP-LSQM048NTW05
|
|
Air flow @ 50Hz [m³/h]
|
3300 m³/h
|
|
Applications
|
LBP
|
|
Approval standard
|
CE
EAC
Ukranian UA TR mark
Morocco Cم mark
|
|
Compressor model
|
NTZ048-5
|
|
Compressor power supply [V/Ph/Hz]
|
230/1/50
|
|
Condenser type
|
D7
|
|
Description
|
|
|
Electrical code
|
G
|
|
Fan blade size [mm]
|
450 mm
|
|
Fan cowl/grill type
|
B2
|
|
Fan current @ 50Hz [A]
|
0.47 A
|
|
Fan diameter [mm]
|
450 mm
|
|
Fan power consumption @ 50Hz [W]
|
110 W
|
|
Fan power output @ 50Hz [W]
|
68 W
|
|
Fan power supply [V/Ph/Hz]
|
230/1/50
|
|
Fan voltage @ 50Hz (max) [V] [Max]
|
230 V
|
|
Fan voltage @ 50Hz (max) [V] [Min]
|
230 V
|
|
Length [mm]
|
464 mm
|
|
Liquid line connection [in]
|
1/2 in
|
|
Liquid line connection type
|
Solder
|
|
MCC
|
11 A
|
PDF DATA:
Indoor Eco Coil

Optyma Packaged condensing units

This kit excludes pipe services which can be ordered as an option.